LAPOUGE Dominique Négociateur
Télécharger la fiche

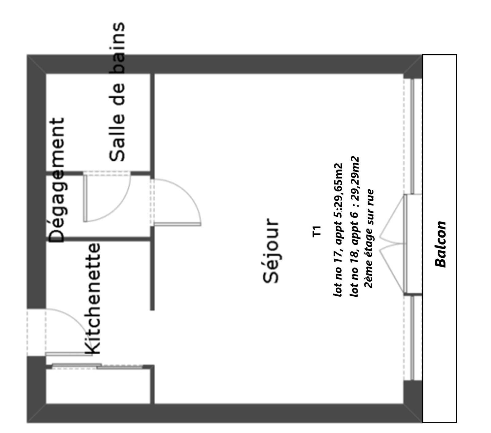
Immeuble 90 m²

Bordeaux (33000)
525 000 € Référence 1490

A propos de ce bien

Investissez dans un lot de 3 logements pour étudiants à l'entrée de la rue de Pessac , soit 3 T1 loués ou vides d'environ 29m2+balcon et 2 parkings loués avec ces logements.

Vous profiterez d'une petite résidence des années 90 en bon état de fond,

constituée de seulement 12 logements+stationnements

et placée à proximité de la place de la victoire et son Tram B,

à deux pas du bus rapide G qui amène à la Gare, et à proximité du Tram A.

Ces logements, loués à des étudiants par bail non meublé de 3 ans,

génèrent un revenu annuel de 22000€ hors charges environ.

Tous les T1 sont en bon état de fond.

DPE des lots:2xE+D, ancienne version à mettre à jourCette opportunité vous intéresse?

Contactez B2P Immobilier au 0556512900 ou rendrez nous visite au 19 rue Fondaudège.

B2P Immobilier et B2P Gestion seront vos partenaires conseil pour tous vos projets immobiliers:

Vente, Location, Gestion de Biens ou de Copropriété..

Caractéristiques de ce bien

  • Surface 90 m²
  • quartier Bordeaux, Bourse Du Tavail/albret, Bourse Du Travail, Bourse Du Travail /albret, Bourse Du Travail Albret, Bourse Du Travail Hopital, Bourse Du Traval, Hopital Saint Andre, Hopital Saint Andre /vict, Hopital St Andre, Hopital St Andre/victoire, Prox Hopital Saint Andre, Prox Hopital St Andre, Prox Victoire, Saint Andre, St Genes, St Genes/mazarin

Diagnostics énergétiques

Consommation énergétique
A B C D E F G
Emission de gaz à effet de serre
A B C D E F G
DPE ANCIENNE VERSION

Informations financières

Prix de vente honoraires TTC inclus 525 000 €

Autour du bien

  • Commerces et santé
  • Loisirs
  • Ecoles
  • Transports
  • Pratique

Calcul des mensualités

* Champs obligatoires