B2P IMMOBILIER Agence
Télécharger la fiche
Sous-offre

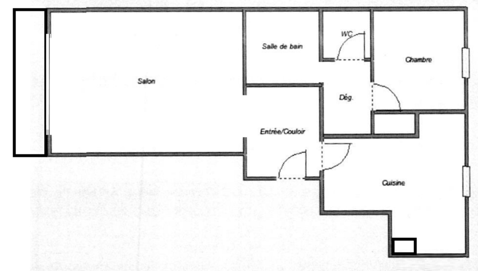
Appartement 2 pièce(s) 1 chambre(s) 52.93 m²

Bordeaux (33000)
185 000 € Référence FEY2

A propos de ce bien

CE LOGEMENT EST VENDU PAR B2P IMMOBLIER!

VOUS AVEZ UN PROJET IMMOBILIER?

CONTACTEZ NOUS AU 0556512900

OU RETROUVEZ NOUS AU 19 RUE FONDAUDÈGE!

B2P IMMOBILIER EST À VOTRE DISPOSTION POUR TOUT PROJET DE VENTE, LOCATION, ET B2P GESTION POUR VOTRE

GESTION OU VOTRE SYNDIC DE COPROPRIÉTÉ,


Les informations sur les risques auxquels ce bien est exposé sont disponibles sur le site Géorisques

Caractéristiques de ce bien

  • Surface 52,93 m²
  • carrez 52,76 m²
  • séjour 20,48 m²
  • 1 chambre(s)
  • 1 salle(s) de bain
  • construit en 1970
  • cuisine séparée
  • Chauffage individuel : radiateur (gaz)
  • 1 garage(s)
  • exposition Est-Ouest
  • 1 niveau(x)
  • 3ème étage
  • ascenseur
  • vue toits et jardins
  • cave
  • balcon
  • interphone
  • quartier St Augustin, St Augustin /ave D'ares, St Augustin /chu, St Augustin Centre, St Augustin/ave Ares
  • accès handicapé

Diagnostics énergétiques

Consommation énergétique
A B C D E F G
Emission de gaz à effet de serre
A B C D E F G

Montant estimé des dépenses annuelles d'énergie pour un usage standard est compris entre 1 360 € et 1 880 € . Prix moyens des énergies indexés sur les années 2021, 2022 et 2023 (abonnements compris).

Informations financières

Prix de vente honoraires TTC inclus 185 000 €
Prix de vente honoraires TTC exclus 175 000 €
Honoraires TTC à la charge acquéreur 5,71 %
Charges 120 €
Taxe foncière annuelle 1 200 €

Informations de copropriété

Copropriété Oui
Lot n° 20
Quote part annuelle des charges 1 400 €

Autour du bien

  • Commerces et santé
  • Loisirs
  • Ecoles
  • Transports
  • Pratique

Calcul des mensualités

* Champs obligatoires